Altes Stromwerk

  • Mannheim
  • 2020
  • Studie
  • Konzept
  • Entwurf

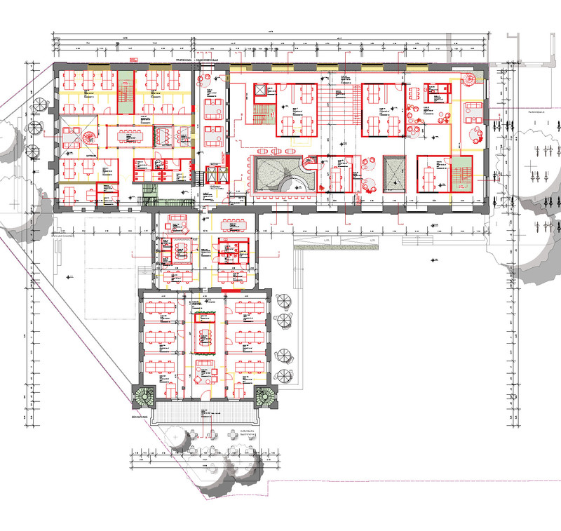
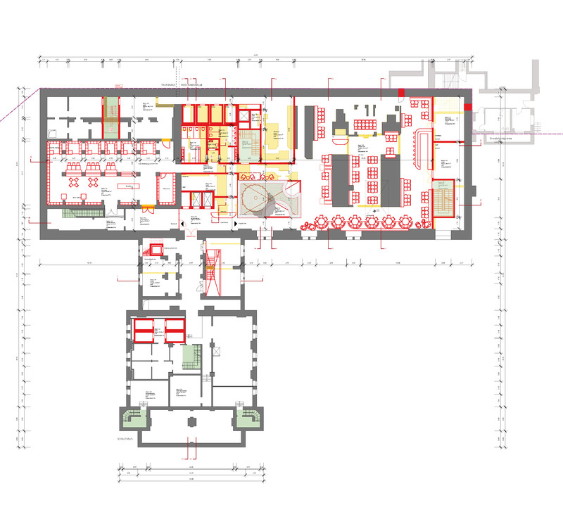
Das historische Stromwerk, erbaut im Jahr 1898, liegt seit mehreren Jahren brach. Für einen privaten Auftraggeber haben wir ein Nutzungskonzept erarbeitet: Als neuer Kreativort sollen hier unterschiedlichste Branchen aus der Kultur- und Kreativwirtschaft zusammenkommen und einen neuen starken Ort im Quartier entstehen lassen. Aufbauend auf dem Nutzungskonzept wurde eine Vorplanung des Gebäudeumbaus sowie eine Kosten-/Nutzenrechnung erstellt.

Das ehemalige Stromwerk soll als Kreativort entwickelt werden. Mit einem Nutzungsmix aus New Work, Werkstätten, Gastronomie und Freizeit wurde ein räumliches Konzept entwickelt.

Mit einem offenen Grundriss und einem Haus-im-Haus Konzept für die frühere Traffo-Halle zeigt das Konzept, wie man zeitgenössisches Arbeiten im historischen Kontext umsetzen kann.